ÇANDARLI HAMAMI >>> Osmanlı döneminde bir çok padişah�ın sadrazamlığını üstlenen ve devlet kademesinde söz sahibi olan Çandarlı Ailesinden çıkan son sadrazam Çandarlı İbrahim Paşa tarafından yaptırılan Çandarlı Hamamı yıkımına kadar sürekli hamam olarak kullanılmış. 1956 yılında Aksaray�dan Unkapanı�na kadar uzanan Atatürk Bulvarı�nın açılması sırasında yıkılan Çandarlı Hamamı�ndan günümüze tek bir taş parçası kalmış değil. ayrıca bu hamamda ünlü Şair Neyzen Tevfik'in de çeşitli anılarının olduğu da söylenir.

POLYEUKTOS KİLİSESİ >>> Saraçhane'deki İstanbul Büyükşehir Belediyesi'nin hemen bitişiğinde yer alan kalıntılar bir zamanlar Bizans'ın Ayasofya'dan sonra en büyük kilisesi olan Polyeuktos kilisesinin temelleridir aslında. 6. yy.'da yapılan kilise 11. yy'da Latin İstilası'nda yağmalanmış ve kilisenin değerli parçaları Venedik ve Barcelona'ya kaçırılmış. son yıllarda farkedilen bu kalıntının sadece etrafı tel örgülerle çevrilerek koruma altına alınmaya çalışılmış. Kilise, şehrin tam ortasında ama yine de ilgilenen olmayınca harabe şeklinde ziyaretçilerini bekliyor.

ESKİ ÇIRAĞAN SARAYI >>> Mimarlığını Ebniye-i Hassa Müdürü Es-Seyyid Abdülhalim Bey'in yaptığı bu ilk Çırağan Sarayı'nın inşaasına 1834 yılında başlanmış. Oldukça büyük bir alana yapılan bu ilk Çırağan Sarayı'nın en belirgin özelliğini teşkil edecek olan cephe sütunları Marmara Adası'ndan getirilmiştir. inşası 1841 yılında tamamlanan sarayı gören ünlü gezgin ve devlet adamlarının da dikkatini çekmiştir. 1836-1839 yılları arasında İstanbul'da askeri uzman ve danışman olarak bulunan Helmuth Von Moltke Eski Çırağan Sarayı için: "Padişah yapıya meraklıdır. Boğaz kenarında Çırağan'da ne Avrupa ne de Asya üslubunda olmamakla birlikte bulunduğu şirin çevrede sahiden güzel bir etki yapan yeni bir saray inşa ettirdi. Demiştir. Eski Çırağan sarayı, yerine yeni Çırağan sarayı yapılmak üzere 1857 yılında yıktırılmıştır.

GALATA SURLARI >>> Cenevizliler tarafından Azapkapı�dan Tophaneye kadar kademe kademe inşa edildiği tahmin ediliyor, ve iç duvarlar ile Galata�yı 3 ayrı mahalleye ayırıyor. İstanbul'un Fethinden sonra da bu surlar şehrin bir parçası halinde kalıyor. ancak Sultan Abdülaziz döneminde gerçekleştirilen yeni şehirleşme planları Galata Surlarının günümüze ulaşamamasına neden olmuş.

TAKSİM KIŞLASI >>> III. Selim zamanındaki askeri reformların bir ürünü olan Taksim Kışlası İstanbul�un en büyük kışlalarından. Ortası çok geniş; esas cephesi ise daha sonra oryantalist üslupta düzenleniyor. Mütareke yıllarında Senegalli askerler burada barınıyor. Daha sonra ise içerisi stadyum olarak düzenleniyor. ve 1940 yılına kadar da milli müsabakalar Taksim Stadı olarak bildiğimiz "Taksim Kışlası" içerisinde yapılıyor. dönemin Cumhurbaşkanı İsmet İnönü tarafından yerine bir gezi parkı yapmak uğurna yerle bir ediliyor.

SADABAT SARAYI >>> Lale Devrinde yaptırılan ve genel havası Batılı gibi durmayan Saadabat Sarayı�nın çevresindeki bahçelerde Fransız etkisi görülüyor, örneğin Kağıthane Deresi�nin 1 kilometrelik kısmı Cetvel-i Sim adıyla kanala çevriliyor ve burada mermer kaskadlar, fıskiyeler yapılıyor. Elçi kabulü için de kullanılan saray 1730 Patrona Halil isyanı ile birlikte büyük zarar görüyor.

İNCİLİ KÖŞK >>> 16. yy Devlet adamlarından Sinan Paşa tarafından yaptırılan Sarayburnu'ndaki İncili Köşk, bugün hala kullanılmakta olan Sepetçiler Kasrı'nın benzeri bir yapıya sahipmiş. Klasik Dönem yapısı olan İncili Köşk, günümüzde de mevcut olan bir altyapı üzerine oturuyor. Rumeli demiryolu hattının Sirkeci�ye uzatılması sırasında yıkılıyor. Yıkılmasıyla birlikte İstanbul eşsiz köşklerinden birini daha kaybediyor.

DİREKLERARASI >>> Nevşehirli Damat İbrahim Paşa külliyesinin arasta kısmı olan Direklerarası, Tanzimat sonrası İstanbul'unun eğlence merkezi haline geliyor. meddah, tuluat gibi eğlencelerin vazgeçilmez mekanı haline geliyor. Osmanlı'nın son dönemi ve Cumhuriyet yıllarında çevrede sinema ve tiyatro binaları gelişiyor. Bir yandan gelişirken diğer yandan da eski Direklerarası parça parça yıkılmaya devam ediyor. Günümüze gelene kadar güney kısım tamamen yıkılıyor, kuzeyde tarafında kalan bir kaç dükkan da bugün çeşitli esnafın geçimlerini sağladığı dükkanlar haline gelmiş..

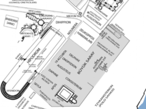
ANTİOCHOS SARAYI >>> Hipodrom�a bitişik olan, altıgen planı ile dikkat çeken bu yapının önünde yay biçimli büyük bir girişi var. Saray daha sonraları Hagia Euphemia Kilisesi�ne çevriliyor; bu sırada iç düzeni değiştiriliyor. Kilise, Bizans İmparatorluğu�nun sonuna kadar ayakta kalıyor. Bu ünlü Bizans Sarayının Yıkım tarihi belli değil. sarayın üzerinde bugün sultanahmet adliyesi yükselmekte ve planı ve yapı tarzı ile ilgili tek bir bilgi bile yok.

Editör Hakkında